Με πράξη της Διευθύνουσας το Εφετείο Λάρισας, Προέδρου Εφετών, καθορίστηκε επίσημα ο χώρος όπου θα διεξαχθεί η δίκη για την τραγωδία των Τεμπών.
Η αίθουσα συνεδριάσεων που θα φιλοξενήσει τη διαδικασία θα βρίσκεται στο Συνεδριακό Κέντρο του Πανεπιστημίου Θεσσαλίας, στο συγκρότημα ΓΑΙΟΠΟΛΙΣ (πρώην ΤΕΙ Λάρισας).
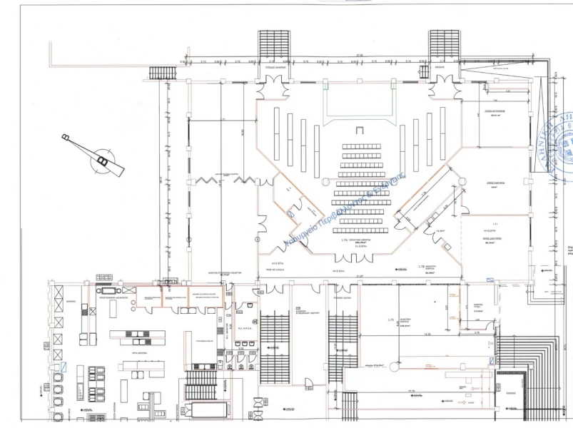
Η κύρια αίθουσα του Τριμελούς Εφετείου Κακουργημάτων Λάρισας, όπου θα τοποθετηθεί η έδρα του δικαστηρίου, τα έδρανα των δικηγόρων και οι θέσεις των κατηγορουμένων, έχει εμβαδόν 283,75 τ.μ..
Παράλληλα, προβλέφθηκαν επιπρόσθετοι χώροι για την εξυπηρέτηση του κοινού, των δημοσιογράφων και των μαρτύρων.
Συγκεκριμένα, ορίστηκε:
- Ως δευτερεύουσα αίθουσα συνεδριάσεων ο κύριος χώρος υποδοχής του Συνεδριακού Κέντρου, εμβαδού 109,57 τ.μ., όπου θα τοποθετηθούν θέσεις ακροατηρίου με οθόνες παρακολούθησης.
- Επιπλέον, θα αξιοποιηθεί και ο χώρος του φουαγιέ, εμβαδού 82,58 τ.μ., ο οποίος επίσης θα εξοπλιστεί με οθόνες για τη ζωντανή μετάδοση της διαδικασίας.
Η κάτοψη της αίθουσας που συνοδεύει την πράξη παρουσιάζει αναλυτικά τη χωροθέτηση, με ειδικά διαμορφωμένους χώρους για την αστυνομία, τους μάρτυρες, τους δικηγόρους και τα μέσα ενημέρωσης.



